Ransweiler:
Verwirklichen Sie Ihr Traumhaus inkl. Bauplatz in Ransweiler - Bien-Zenker
Objekt-Nr.: 12374-326

EDITION 123 (Projektierung auf Bauplatz in Ransweiler)

Ihr Haus mit Bien-Zenker Best- und Festpreisgarantie

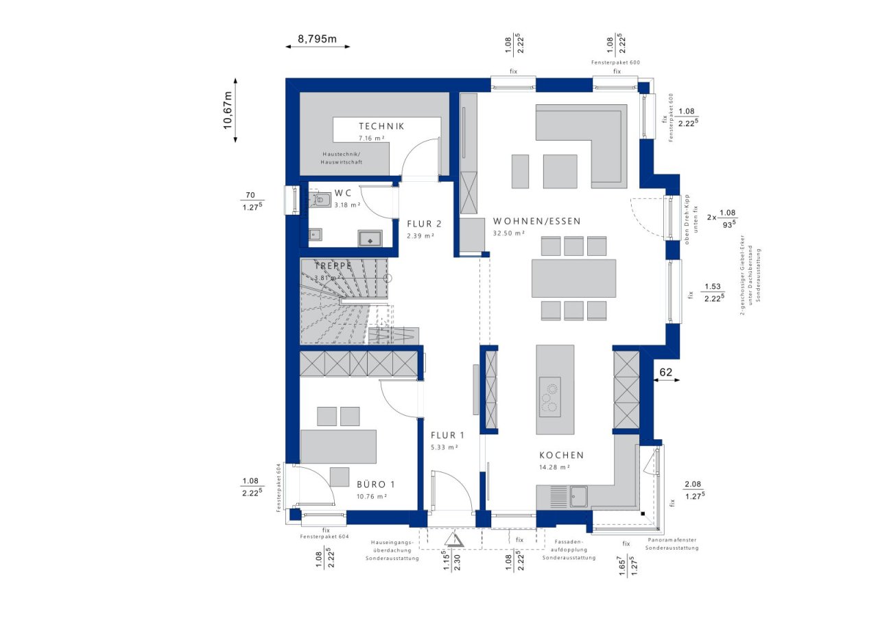
Erdgeschoss

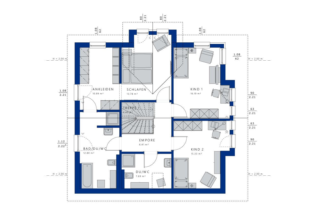
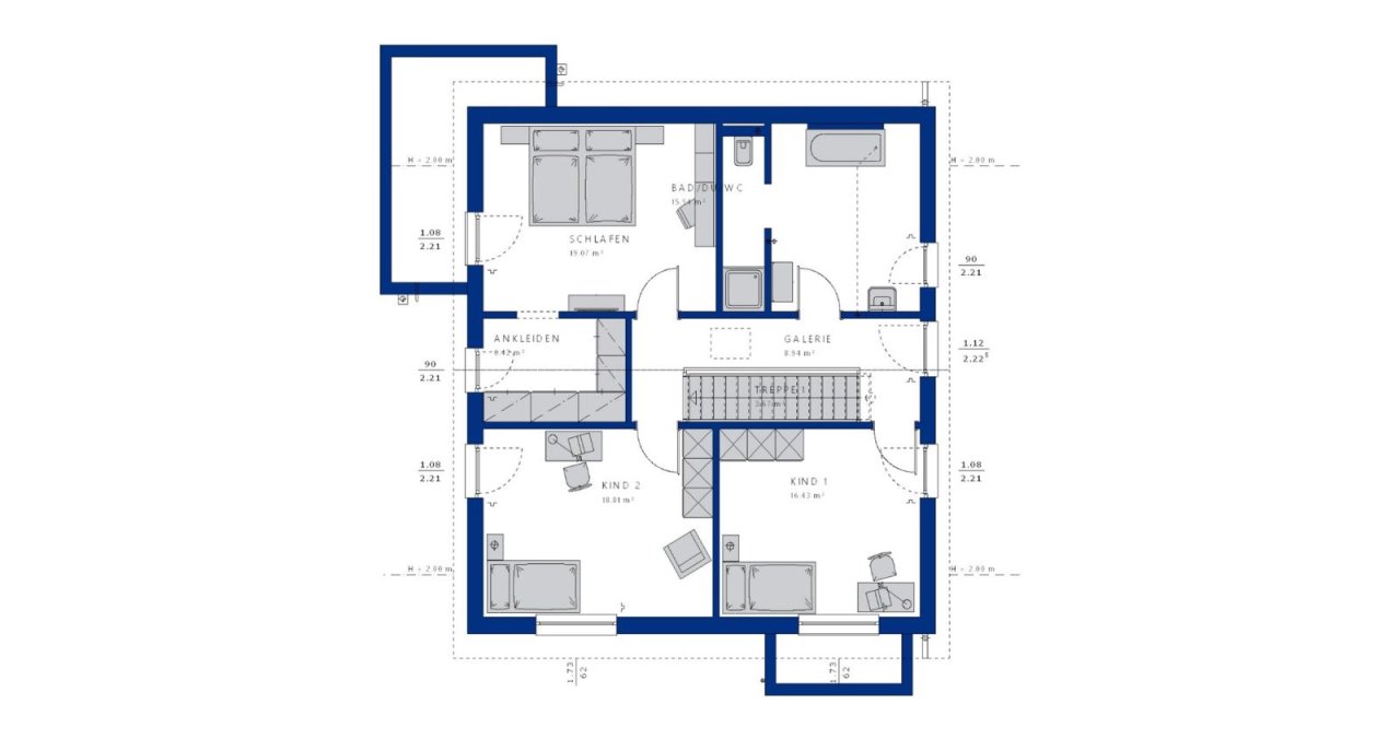
Dachgeschoss

EDITION 123

Wohnraumbeispiel Ess- / Wohnzimmer

Wohnraumbeispiel Badezimmer

Grundstück - Ansicht 1

Grundstück - Ansicht 2

Grundstück - Ansicht 3


Bauen mit Bien-Zenker - Kontaktieren Sie mich! Ihr Taumhausexperte Tilo Neumeister












Preis:
445.000 €
Wohnfläche ca.:
150 m²
Grundstück ca.:
824 m²
Zimmeranzahl:
5
Zum Verkauf steht ein großes, voll erschlossenes Baugrundstück in der idyllischen Lage von Ransweiler (67808). Mit einer großzügigen Grundstücksfläche von 824 m² bieten sich zahlreiche Gestaltungsmöglichkeiten für Ihren Traum-Neubau.
Dieses Angebot präsentiert eine beispielhafte Projektierung, die auf diesem attraktiven Bauplatz umsetzbar ist. Selbstverständlich sind wir auch offen für Ihre individuellen Vorstellungen und besprechen diese gerne in einem persönlichen Treffen. Haben wir Ihr Interesse geweckt? Zögern Sie nicht, uns eine Nachricht zu hinterlassen oder anzurufen. Wir freuen uns darauf, von Ihnen zu hören!
Haustyp: Einfamilienhaus
Etagenanzahl: 2
Provisionspflichtig: nein
Anzahl Schlafzimmer: 3
Anzahl Badezimmer: 1
Gäste-WC: ja
Dachboden: ja
Keller: nein
Als Ferienhaus geeignet: ja
Möbliert: nein
Bauphase: Haus in Planung (projektiert)
Zustand: Haus in Planung (projektiert)
Grundstück exklusiv aus privater Hand - KEINE Provision
Das Grundstück ist noch nicht das Perfekte für Sie? Der Hausentwurf passt nicht ganz zu Ihren individuellen Vorstellungen? Kein Problem! Wir stehen Ihnen gerne beratend zur Seite.
Wir möchten Sie darauf hinweisen, dass wir nur Anfragen mit vollständigen Angaben (Name, Anschrift, Telefonnummer, E-Mail) beantworten können. Bitte haben Sie Verständnis dafür.
Alle Informationen werden ohne Gewähr bereitgestellt. Die Angaben zum Grundstück basieren auf den Informationen des Eigentümers. Eine Haftung für die Vollständigkeit und Richtigkeit dieser Angaben wird nicht übernommen. Die dargestellten Abbildungen können zusätzliche kostenpflichtige Extras enthalten.
AUF WUNSCH stelle ich den Kontakt zum Finanzierungsberater meines Vertrauens her, Marco Will von HeunFinanz.
Wir weisen auf unsere Allgemeinen Geschäftsbedingungen hin. Durch weitere Inanspruchnahme unserer Leistungen erklären Sie die Kenntnis und Ihr Einverständnis.
Das könnte Ihnen auch gefallen

Tilo Neumeister - Freie Handelsvertretung der Bien-Zenker GmbH
Herr Tilo Neumeister
Kühnbergweg17
74915 Waibstadt
Telefon: +49 171 6516923
































